Eirhöfði 3 og 5 bakhlið - Tölvuteiknuð

Eirhöfði 3 og 5

Eirhöfði 3 og 5

Eirhöfði 3 og 5 er glæsilegt 7 hæða hús sem skiptist í tvo stigaganga. Húsið er með lyftu og bílakjallara þar sem gert er ráð fyrir rafhleðslu fyrir bíla. Geymslur fylgja öllum íbúðum og er þær staðsettar í kjallara, ásamt sameiginlegri hjóla- og vagnageymslu. Gengið er út í skjólgóðan garð með fallegum gróðri og leiktækjum. Stutt er í fjölda göngustíga og stofnbraut.

Íbúðirnar verða fjölbreyttar að stærð og gerð, allt frá tveggja upp í fimm herbergja íbúðir. Gólfefni og innréttingar í íbúðunum verða vönduð að gerð og endingargóð.

Húsið verður klætt að utan með ýmist sléttri álklæðningu eða báraðri. Útihurðar verða úr áli og gluggar úr áli og timbri.

Bílastæði í bílakjallara fylgja sumum íbúðum en annars eru bílastæði ofanjarðar sem eru sameiginleg öllum húsunum. Hönnun bílastæða er unnin í samvinnu við Reykjavíkurborg þar sem þetta er bæjargata. Bílastæðahús mun rísa í göngufjarlægð frá Eirhöfða 3 og 5.

Sérverk mun sjá um byggingu íbúðanna en ASK arkitektar eiga heiðurinn af hönnun húsanna.

Viltu fá fréttir af Eirhöfða 3 og 5?

Með því að skrá þig á póstlista Búseta færðu fréttir af framkvæmdum, sölu íbúða og fleiru tengt verkefninu. Skrá mig á póstlistann.

Sameiginlegur garður

Fallegur garður í miðjunni

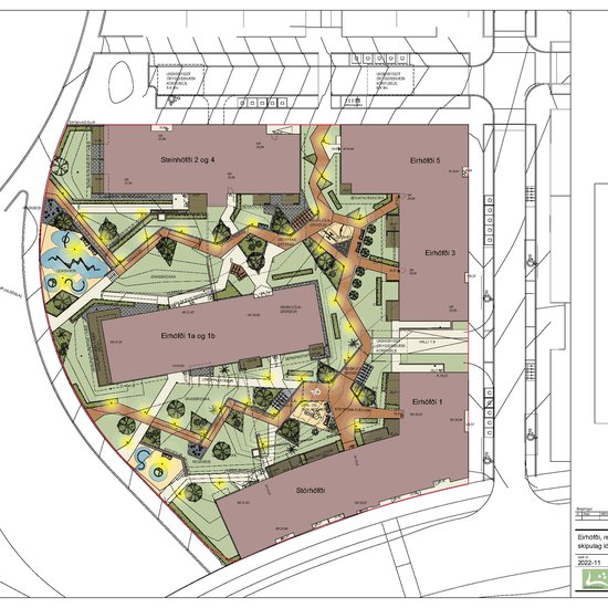
Við húsin er sameiginlegur garður með Eirhöfða 1 og Steinhöfða 2 og 4 sem hannaður er af Hermanni Ólafssyni landslagsarkitekt.

Rauðbrúnar steyptar stéttir liggja um garðinn og við þær verður lýsing. Í honum verða reiðhjólagrindur og þrjú mismunandi leiksvæði fyrir börn. Í garðinum verður gras, runnar og trjágróður í miðlungshæð, trépallar ásamt regnbeðum.

Hverfi í uppbyggingu

Áhersla á grænt og fallegt umhverfi

Ártúnshöfðinn í Reykjavík er að taka miklum breytingum þar sem iðnaðarhúsnæði er að víkja fyrir glæsilegri íbúabyggð. Áætlað er að í þessum nýja borgarhluta rísi blómleg byggð og að Ártúnshöfði muni byggjast upp sem ný miðja borgarinnar. Staðsetning svæðisins er einstök og nálægð við útivistarsvæði Elliðaárdals og strandlengjuna skapar sannkallaða útivistarperlu í Reykjavík.

Áhersla verður á græn svæði og vistvænar samgöngur en í hverfinu verða upphitaðar gönguleiðir og net af hjólastígum.

Hverfið er í nálægð við stofnæðar og Reykjavíkurborg leggur áherslu á að það verði aðeins í 15 mínútna fjarlægð frá þjónustu eins og leik- og grunnskólum, verslunum, heilsugæslu o.fl. Með fyrirhugaðri Borgarlínu sem liggur í gegnum mitt hverfið verða samgöngur greiðar úr hverfinu t.d. 7 mínútur í miðbæ Reykjavíkur. Borgarlínan mun beintengja menningu og mannlífsflóru austur- og vesturhluta Reykjavíkurborgar.

Stefnt er á að árið 2030 verði komin blönduð íbúðabyggð með 3.000 til 4.000 íbúðum á svæðinu. Í hverfinu verða íbúðir við allra hæfi, skólastig á öllum stigum, heilsugæsla og þjónusta fyrir eldri borgara.

Búseti tekur þátt í þessari uppbyggingu með byggingu hússins við Eirhöfða 3 og 5.

Stefnt er að því að hverfið fari í gegnum umhverfisvottunarferli og að borgarhlutinn verði sá fyrsti sem fái sérstaka umhverfisvottun samkvæmt alþjóðlegum stöðlum.

Hönnuðir

Byggingaverktaki

Mynd frá ASK Arkitektum